Опоры ОГС
- 30
- 60
- 90
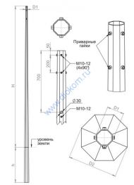
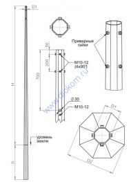
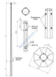
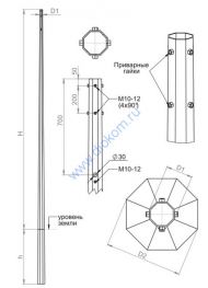
Опоры граненые силовые
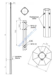
ОГС-силовые. Предназначены для установки в местах массового пребывания людей, на улицах, набережных, автомобильных дорогах различной проходимости. Кабель подводится по воздуху, что существенно облегчает работы по прокладке или замене в случае необходимости.
Мачты изготавливаются из листового металлопроката. Минимальная толщина листа 6 мм. Оптимальная – 10 мм. Структура опоры такова, что она выдерживает не только светильник или несколько осветительных приборов, но и рекламные конструкции, баннеры, указатели, световые и информационные табло.
Минимальная высота опоры осветительной 8 метров, максимальная 12 метров. На одной мачте может размещаться от 250 до 1500 кг. Потребителям предлагаются и прямостоечные, и фланцевые варианты. Выбирать тот или иной вариант необходимо только с учетом типа грунта, ландшафта, характеристик объекта.
Для расчета цены, сроков производства и доставки в
- Отправьте заявку на почту zakaz@diokom.ru
- По телефону
- Доставка :








































